Bernard Besançon, président de CAPTOGO, a fait la connaissance de Joseph Arizina, agriculteur maraîcher bio à Sokodé en 2008. Leur passion commune pour l’agriculture biologique, et même pour sa version biodynamique, les a rapprochés et leur relation amicale s’est enrichie au fil des années. Joseph est un autodidacte qui s’est formé tout seul aux méthodes de l’agriculture biodynamique à l’aide de livres et de revues du M.A.B.D. (Mouvement de l’Agriculture Bio-Dynamique). Ses cultures, comme le montre les images qui illustrent cet article, sont remarquables.




Les nombreuses discussions entre Bernard Besançon et Joseph Arizina, en présence d’ailleurs de Jean Bakpessi représentant résident de CAPTOGO, ont conduit à un rapprochement de Joseph vers notre collectif. Il nous a semblé important que le « savoir-faire » de Joseph puisse être utilisé par d’autres agriculteurs togolais désireux de se tourner vers ce type de pratiques. C’est ainsi qu’est née l’idée de construire à Sokodé un centre de formation à l’agriculture biologique.
Nous, CAPTOGO, avons alors approché le Ministère togolais de l’agriculture, en Mars 2014, en faisant valoir tous les avantages (sanitaires, économiques et sociaux,…) que présenterait le développement de l’agriculture bio au Togo. Nous avons été très agréablement surpris de l’enthousiasme avec lequel M. le Ministre Agadazi a accueilli notre proposition. Ce dernier a, très rapidement, organisé un forum de l’A.B. dans le cadre de la foire agricole annuelle de Mango en août 2014. Bernard Besançon qui avait participé à distance à la préparation de ce forum s’est rendu à Mango et a participé activement à cette manifestation avec notre ami Joseph Arizina et M. Bakpessi. Plus de 200 participants, togolais pour la plupart, acteurs à divers titres de la filière bio, ont débattu des conditions dans lesquelles ils pourraient se mettre en réseau pour organiser la production bio, la labelliser, la commercialiser, améliorer leur formation…. Nous avons insisté sur le fait qu’il s’agissait à travers cette démarche de freiner l’exode rural qui ronge actuellement le Togo en permettant aux agriculteurs de rester sur leurs terres et d’en vivre correctement. Nous avons également insisté sur la nécessité, urgente, de mettre en place une formation permettant d’atteindre des rendements satisfaisants sans utiliser d’intrants chimiques de synthèse.
A l’issue de ce forum, M .le Ministre a demandé au président de CAPTOGO de l’accompagner dans les locaux de la télévision togolaise afin d’intervenir au journal télévisé ; ce fut l’occasion pour le ministre de préciser sa stratégie de développement pour l’agriculture biologique au Togo et pour M. Besançon d’expliquer la démarche de soutien de CAPTOGO. Pendant environ ¼ h. et à tour de rôle ils ont pu intervenir de façon très complémentaire pour informer la population togolaise du souhait de voir se développer la filière bio au Togo et faire du pays un exemple en la matière.
voir ici un extrait de l’intervention à la télévision togolaise du président de CAPTOGO à l’occasion de la foire agricole de Mango (Togo), août 2014
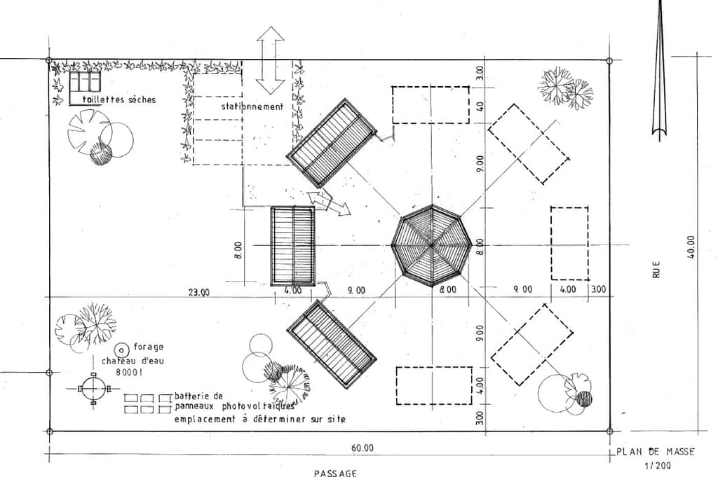
Une cellule « CAPTOGO-BIO » s’est constituée au sein de notre collectif afin de poursuivre notre action dans ce domaine. Notamment, CAPTOGO, s’est engagé à construire à Sokodé un centre de formation à l’agriculture bio.

Le gouvernement togolais nous a assuré de son soutien, y compris financier, pour mener à bien ce projet. Des dossiers de demandes de subventions ont été déposés. Un réseau d’agriculteurs bios alsaciens est en cours d’élaboration pour se mettre en partenariat avec leurs homologues togolais. Bien évidemment toutes les énergies susceptibles de se manifester pour nous rejoindre seront les bienvenues (contacter le président de CAPTOGO). Et, cela va sans dire et encore mieux en le disant, les dons pour financer ce projet seront accueillis avec plaisir (formulaire et explications téléchargeable ici).